1 / 27
74 14TH AVENUE Hanover, Ontario
$799,000
Description
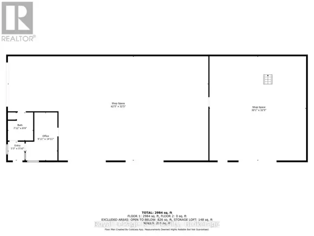
Well-located in Hanover's industrial park, this excellent commercial property offers over 3,100 square feet of versatile space. Constructed n 1999 with an addition in 2003, this building features three loading doors with 12-foot clearance, a 10-foot side door, and a rear dock door with 7-foot clearance -ideal for deliveries and industrial use.The layout includes entry, office space with a washroom and in-floor heating, plus two spacious units with 13-foot ceilings. The remainder of the building is heated by natural gas. A floor hoist is included in the sale, adding value for automotive or mechanical applications.The property sits on over an acre, providing ample parking, a truck bed for storage and a large backyard. A reliable tenant currently occupies the larger section with an entryway, office, washroom and three loading dock doors-tenant is willing to stay. The owners currently are using the smaller section with a front loading dock door, man door and rear dock door. The building is connected to municipal water and sewer services; however, a drilled well supplies water to the lawn sprinkler system. (id:24493)
MLS® #X12268760
The trademarks MLS®, Multiple Listing Service® and the associated logos are owned by The Canadian Real Estate Association (CREA) and identify the quality of services provided by real estate professionals who are members of CREA

The trademarks MLS®, Multiple Listing Service® and the associated logos are owned by The Canadian Real Estate Association (CREA) and identify the quality of services provided by real estate professionals who are members of CREA
About Hanover
The character of Hanover is exemplified by its relaxed ambience. Most areas in Hanover are especially quiet, as the streets are very tranquil.
This information is provided by a third party data source. Kijiji is not responsible for the accuracy of this information.
Getting around
Walk score
3
Few day-to-day needs are within walking distance
Bike score
2
Not very suitable for bicycle commuting and/or recreational cycling
This information is provided by a third party data source. Kijiji is not responsible for the accuracy of this information.
$799,000
74 14TH AVENUE Hanover, Ontario
Take steps to make your Kijiji transactions as secure as possible by following our suggested safety tips. Read our Safety Tips