1 / 3
A 3315 Fairlight DRIVE Saskatoon, Saskatchewan
$18
For Rent By
Professional
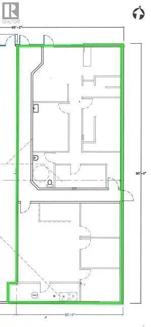
Description
Prominent retail location available with excellent exposure on the corner of Fairmont Dr. and Fairlight Dr. Located next to the Westwinds Primary Health Centre in the Confederation business district. Professionally managed and well maintained property. Currently built out for previous medical use which includes exam rooms, reception area, staff areas and one (1) fully accessible washroom. Other current uses at property include Pharmacy and Veterinarian Clinic. There are 53 full size parking stalls available for common use. Unit A - 2525 SF. $18.00 PSF Net Rent; $8.90 PSF Occupancy Cost (inc. Property Tax); Net Rent ($3,787.50) + Occupancy Costs ($1,872.71) = $5,660.21 + GST per month. (id:24493)
MLS® #SK020651
The trademarks MLS®, Multiple Listing Service® and the associated logos are owned by The Canadian Real Estate Association (CREA) and identify the quality of services provided by real estate professionals who are members of CREA

The trademarks MLS®, Multiple Listing Service® and the associated logos are owned by The Canadian Real Estate Association (CREA) and identify the quality of services provided by real estate professionals who are members of CREA
About Confederation Suburban Centre
Getting around
Walk score
5
Some day-to-day needs are within walking distance
Transit score
4
Transit is available for some trips
Bike score
5
Somewhat suitable for bicycle commuting and/or recreational cycling
This information is provided by a third party data source. Kijiji is not responsible for the accuracy of this information.
$18
A 3315 Fairlight DRIVE Saskatoon, Saskatchewan
Take steps to make your Kijiji transactions as secure as possible by following our suggested safety tips. Read our Safety Tips