1 / 10

Building Permit Drawings House Plans Draft Renovations Architect

Description

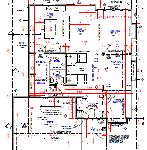
www.DraftDG.com Residential & Small Commercial Plans + Building Permits Plus Permit Process Support Avoid Rejections. Get Approved. Build with Confidence. I’m Daryl — a Canadian residential design and drafting specialist with 30+ years of experience. I prepare permit-ready drawings and support clients through the municipal approval process for residential and small commercial projects in Calgary and surrounding areas. Often searched as an architect, my role is to deliver clear, code-compliant plans and help projects move through approvals efficiently. If you’ve been told “you need drawings for a permit”, or your plans were rejected, unclear, or stalled — this is exactly what I do. ⸻ What I Do I prepare permit-ready drawings and support approvals for: • New homes & renovations • Basement suites & secondary suites • Garages, carriage houses & decks • Commercial tenant improvements • Change-of-use & small commercial projects I also assist with: • Building Permit (BP) and Development Permit (DP) coordination • Rezoning and subdivision feasibility & guidance • Interpreting zoning, land-use bylaws, and approval pathways • Coordinating with planners, engineers, and surveyors as required Rezoning and subdivision services are provided as early-stage guidance and technical support, not as a guarantee of approval. ⸻ Why This Matters Many online drawings look good but fail permit review, causing delays, redesign costs, and frustration. I produce professional Revit-based drawings that: • Meet zoning and building code requirements • Are clear, complete, and buildable • Are prepared specifically for municipal review Always ask to see real permit-approved drawings with a company title block — not sample or AI-generated images. ⸻ Pricing Projects typically range from $500 to $5,000+, depending on: • Scope of work • Residential vs. commercial use • Permit type (BP, DP, or both) • Existing conditions and complexity Send project details (RPR, sketches, photos, scope) for accurate pricing. ⸻ Software & Experience • Autodesk Revit (primary) • AutoCAD (as required) • Deep experience with zoning, land-use bylaws, and municipal approval processes Visit www.DraftDG.com to view real projects that successfully received permits. ⸻ Fast. Professional. Permit-Focused. If you need drawings — and guidance — to move a project through approvals, get in touch.

Listed By

Daryl

Private Seller

To deter and identify potential fraud, spam or suspicious behaviour, we reserve the right to monitor conversations. By sending the message you agree to our Terms of Use and Privacy Policy.

1147 views

Building Permit Drawings House Plans Draft Renovations Architect






















Take steps to make your Kijiji transactions as secure as possible by following our suggested safety tips. Read our Safety Tips