1 / 4

Civil Structural Engineer - Garage Pads - Renovations - Solar

Description

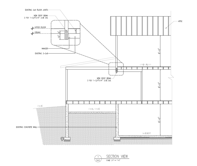
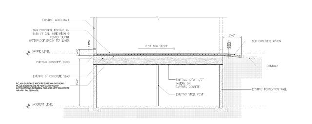
We have worked as Civil/Structural Engineers for 10 years in Calgary providing the following design reviews for our clients: • Concrete Garage Pads • Concrete foundation inspections • Structural Inspection for new Solar Panel installations • Structural Inspection letter for the city of Calgary • Stamped Civil and Structural drawings for new framing in homes, decks, additions to home, foundations, retaining walls, load bearing wall removal and more • New beam design for removal of basement steel posts • New concrete stair entry into basements Please contact us if you have any civil or structural needs as contractor, builder or home owner. Feel free to send me an email direct to " steve @ SMP work.com " ( no spaces) ; or respond to this ad or call the numbers below. Thank You, Steve Petrovich P.Eng - 403-605-7231 SMP-Services Corp

Transaction options

Please reach out to the seller for more info as there may be additional costs.

Cashless payment

Cash accepted

Listed By

S

steve petrovich

Private Seller

To deter and identify potential fraud, spam or suspicious behaviour, we reserve the right to monitor conversations. By sending the message you agree to our Terms of Use and Privacy Policy.

4764 views

Civil Structural Engineer - Garage Pads - Renovations - Solar






















Take steps to make your Kijiji transactions as secure as possible by following our suggested safety tips. Read our Safety Tips